BUCOLIC BEDFORD
Enjoy this custom new construction reimagining of a classic Bedford colonial farmhouse. Boasting 3250 sq. ft., this 4-bedroom, 3.5-bathroom home features an expansive open floor plan with an epic chef's kitchen that allows natural light to flood the space. The chef's kitchen is equipped with custom cabinets, an oversized island, a wall oven and a range. Designer lighting fixtures & premium moldings add a touch of class to every room.
Step inside and you're immediately taken up with beautiful views of the 3 acre flat property out the back, embracing farm style living with modern luxury and unparalleled craftsmanship.
In the middle of the property, enjoy a 1 acre flat plot with space for a pool, pool house, garden and even a barn. At the back of the property, you'll find the shores of the Mianus River.

Rear of House & Deck with Expansive Views of Your 3 Acre Property
2025 New Construction Featuring:
Gorgeous Views of 3 Acre Lot
Floor to Ceiling Slider for Beautiful Views & Entertaining
Chef's Kitchen
Luxury Master Suite with Ensuite Bath and Walk In Closets
Elegant Designer Lighting & Finishes
Giant Deck Opening up to Landscaped Property
Unfinished Attic That Can Be Finished for Additional Space
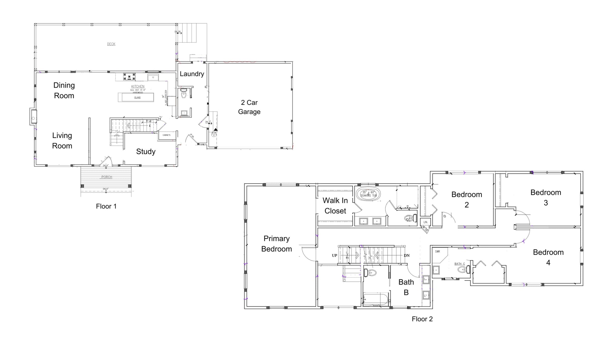
Floor Plans


Luxury Design
The entire home and property has been expertly crafted to bring together the lived interior spaces with the living essence of the surrounding property. Some highlights include:
- Café refrigerator and freezer
- Café stovetop range and oven
- Finished basement with walk out
- Finished Walk-Up Attic






Property Highlights
A truly unique piece of property. This 3 acre flat lot, offers a lot of privacy in the front, and plenty of space to create your own estate in the back. Some highlights include:
- Mianus River
- Middle Section with Pool Permit & Room for Pool House & Garden
Purchase with Peace of Mind
We are known for our attention to detail and quality craftsmanship, building each home as if it were our own. We place the utmost importance on the house not only looking beautiful, but insuring that behind the walls it is built with the same care and expertise. We believe in absolutely no surprises and that's why we stand behind our product 100%. Each home additionally comes with a warranty, so you can move in knowing you and your family are well protected.
